Group Project: Gunes Erel, Hyeji Jun
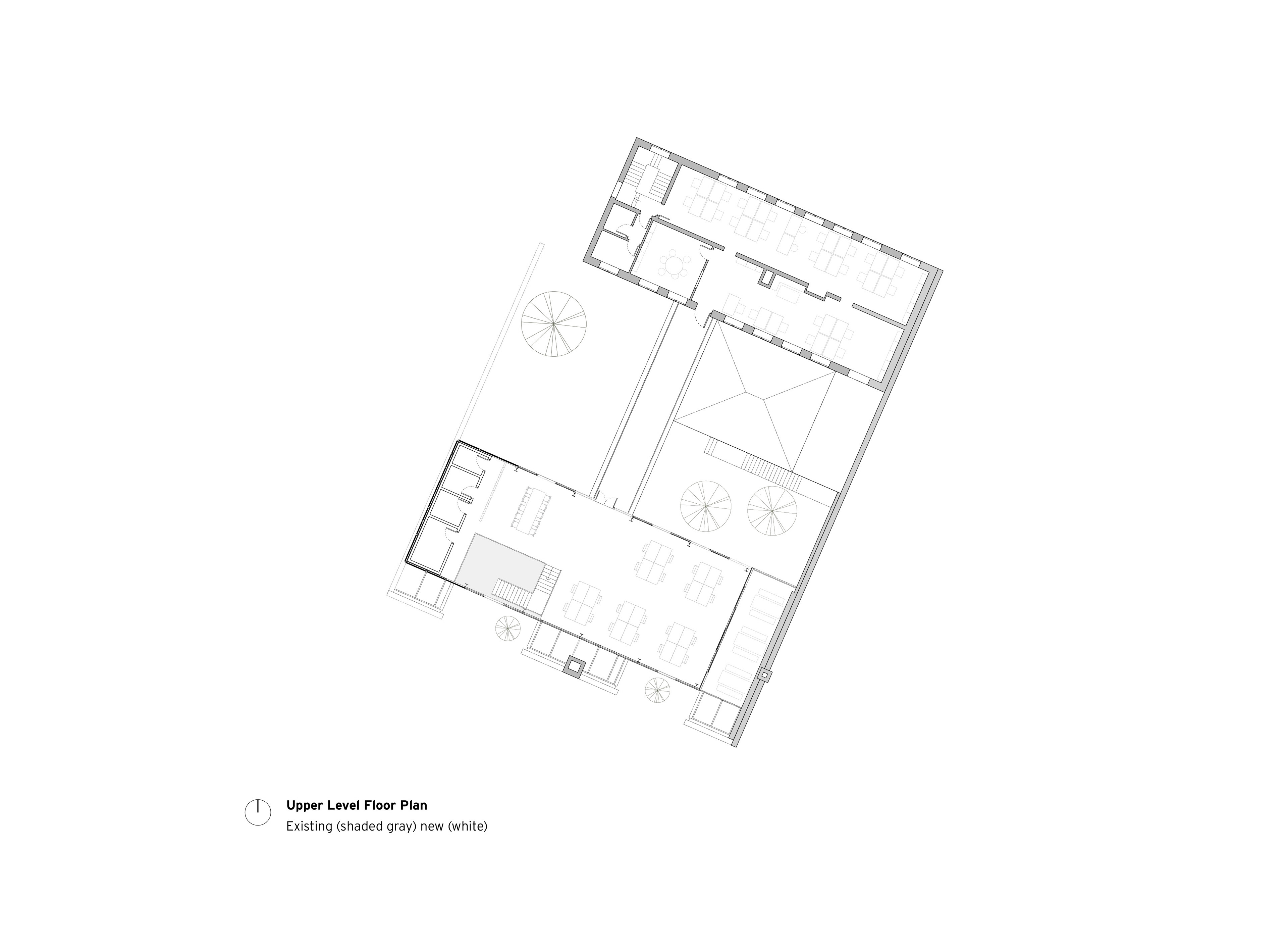
This project represents a thoughtful synthesis of past and present, where historical remnants and contemporary design coalesce to create a unified, dynamic environment within Copenhagen’s rich architectural landscape. This intervention extends the existing structure with a new, adaptable volume that enhances both functional performance and spatial experience.